loading spinner
Potrebujete vyrobiť zrkadlo alebo sklo? neváhajte nás kontaktovať, pošlite nám rozmery a kontakt, vyrobíme Vám ho na mieru dopyt@centrumskla.sk
  • Nové
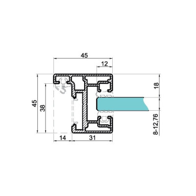
    OFC-4S-KIT - Profil rámu sklo-sklo typu H
    OFC-4S-KIT - Profil rámu sklo-sklo typu H
    OFC-4S-KIT - Profil rámu sklo-sklo typu H

OFC-4S-KIT - Profil rámu sklo-sklo typu H

Cena na vyžádání

0,00 Kč
Dodani 6-10 prac.dnú

FRH je hliníkový profil rámu určený k montáži skleněných dveří do skleněné stěny nebo přímo do zdi.

Počet
Dodani 6-10 prac.dnú

  Bezpečný nákup

Komfortní a bezpečné nakupování online

  Vrácení zboží

14 dní na vrácení zboží

  Bezpečný transport

Zboží je pečlivě zabaleno a pojištěno

Bezpečné a rýchle platby

Zajišťuje stabilní konstrukci a estetické provedení celé instalace. Ideální pro moderní interiéry, které kombinují funkčnost s minimalistickým designem.


Specifikace:

  • Materiál: Vyrobeno z hliníku.
  • Povrchová úprava: RAL9016 ST.
  • Tloušťka skleněných dveří: 8 - 10 mm.
  • Tloušťka pevného zasklení: 8 - 12,76 mm.
  • Délka profilu: 6000 mm.
  • Max. výška dveří: 2400 mm.
  • Nad výškou 2200 mm se doporučuje použít 3 panty.
  • Akustická izolace Rw = 21 - 32 dB.



Použití:

Profil slouží k montáži skleněných dveří do skleněných konstrukcí stěn nebo k jejich přímému zasazení do zdi.


Výhody:

  • Vyrobeno z vysoce kvalitního hliníku, který zajišťuje stabilitu a dlouhou životnost.
  • Hliníková konstrukce se perfektně osvědčuje v různých podmínkách prostředí.
  • Moderní a elegantní povrchová úprava, ideální pro minimalistické interiéry.
CGLASS
OFC4SNW

8 dalších produktů ve stejné kategorii:

KHJ25PSS - Úchyt do dveří

Cena na vyžádání

0,00 Kč   bez DPH
Availability: 3 In Stock

Madlo KHJ25 je ideálním řešením pro ty, kteří oceňují moderní design a funkčnost. Je vyrobena z vysoce kvalitních materiálů a zaručuje dlouholetou odolnost a estetický vzhled.

KHN65PSS - Madlo

475,16 Kč   bez DPH
Availability: 3 In Stock

Posuvná klika KHN65 je elegantní a funkční doplněk, který se skvěle hodí do moderních interiérů. Tato žaluziová klika, navržená s důrazem na estetiku a pohodlí, má robustní konstrukci vyrobenou z vysoce kvalitních materiálů, které zajišťují její dlouhou životnost a odolnost při každodenním používání.

Produktová recenze

Průměrné hodnocení

0.0
0 Recenze
★★★★★ Vynikající 0
★★★★☆ Dobrý 0
★★★☆☆ Střední 0
★★☆☆☆ Chudý 0
★☆☆☆☆ Hrozný 0

  • Recenze (0)