loading spinner
Potrebujete vyrobiť zrkadlo alebo sklo? neváhajte nás kontaktovať, pošlite nám rozmery a kontakt, vyrobíme Vám ho na mieru dopyt@centrumskla.sk

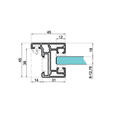
OFC-4S-KIT - Profil rámu sklo-sklo typu H

Cena na vyžiadanie

0,00 €
Dodanie 6-8 prac.dni

FRH je hliníkový rámový profil určený na inštaláciu sklenených dverí do sklenenej steny alebo priamo do tehlovej steny.

Množstvo
Dodanie 6-8 prac.dni

  Bezpečný nákup

Komfortné a bezpečné nakupovanie online

  Vrátenie tovaru

14 dní na vrátenie tovaru

  Bezpečný transport

Tovar je dôkladne zabalený a poistený

Bezpečné a rýchle platby

Zaisťuje stabilnú konštrukciu a estetický vzhľad celej inštalácie. Ideálny pre moderné interiéry, ktoré kombinujú funkčnosť s minimalistickým dizajnom.


Špecifikácie:

  • Materiál: Vyrobené z hliníka.
  • Povrchová úprava: RAL9016 ST.
  • Hrúbka sklenených dverí: 8 - 10 mm.
  • Hrúbka pevného zasklenia: 8 - 12,76 mm.
  • Dĺžka profilu: 6000 mm.
  • Max. výška dverí: 2400 mm.
  • Nad výškou 2200 mm sa odporúča použiť 3 pánty.
  • Zvuková izolácia Rw = 21 - 32 dB.



Použitie:

Profil sa používa na inštaláciu sklenených dverí do sklenených stenových konštrukcií alebo na ich priame osadenie do muriva.


Výhody:

  • Vyrobené z vysoko kvalitného hliníka, ktorý zaručuje stabilitu a dlhú životnosť.
  • Hliníková konštrukcia je ideálna pre rôzne podmienky prostredia.
  • Moderné a elegantné vyhotovenie, ideálne pre minimalistické interiéry.
OFC4SNW

8 iné výrobky v rovnakej kategórii:

H19-19-220SSS - Madlo

(3)
35,65 €   bez DPH
Dostupnosť: 11 Na sklade

Štvorhranná sklenená kľučka H19-19-220 je elegantný a funkčný doplnok, ktorý sa dokonale hodí do moderných interiérov. Táto kľučka, navrhnutá s dôrazom na estetiku a pohodlie, má robustnú konštrukciu vyrobenú z vysokokvalitných materiálov, ktoré zaručujú jej dlhú životnosť a odolnosť pri každodennom používaní.

TGKH45 PBC - Madlo do dverí O45

37,27 €   bez DPH
Dostupnosť: Nie je na sklade

Madlo TGKH45 je štýlový a praktický doplnok, ktorý sa dokonale hodí do moderných aj tradičných miestností. Je vyrobená z robustných materiálov, čo zaručuje jej dlhú životnosť a odolnosť pri každodennom používaní.

SHS-H01-525L PBC - Madlo Lucca

51,79 €   bez DPH
Dostupnosť: Nie je na sklade

Madlo Lucca SHS-H01-525L je vynikajúcou voľbou pre sklenené dvere, pretože poskytuje nielen funkčnosť, ale aj elegantný vzhľad. Táto kľučka je vyrobená z vysokokvalitných materiálov, je robustná a odolná, ideálna na každodenné používanie.

CLM-3642-G-3000-NA - Montážna lišta "U" 36x42 mm
  • Strieborná anóda

CLM-3642-G-3000-NA - Montážna lišta "U" 36x42 mm

62,97 €   bez DPH
Dostupnosť: Nie je na sklade

Montážna lišta CLM-3642-G je praktický konštrukčný prvok, ktorý umožňuje rýchlu a pohodlnú inštaláciu rôznych systémov. Vďaka svojmu delenému dizajnu poskytuje väčšiu flexibilitu a prispôsobivosť požiadavkám inštalácie.

KH16-38 PSS - Madlo do dverí

(1)
23,68 €   bez DPH
Dostupnosť: 8 Na sklade

Kľučka na dvere KH16-38 je štýlový a praktický doplnok, ktorý je ideálny pre moderné aj tradičné interiéry. Je vyrobený z najkvalitnejších materiálov, čo zaručuje jeho trvanlivosť a odolnosť pri každodennom používaní.

Recenzia produktu

Priemerné hodnotenie

0.0
0 Prehľad
★★★★★ Vynikajúce 0
★★★★☆ Veľmi dobré 0
★★★☆☆ Dobré 0
★★☆☆☆ Uspokojivé 0
★☆☆☆☆ Zlé 0

  • Recenzie (0)